Luminoso quadrilocale con giardino, laghetto naturale e vista libera
Meltina
690.000 €
Prezzo
148 m2
Commerciali
4
Locali
Informazioni principali
  • Immobile convenzionato
    Si
  • Classe consumo energetico
    B
  • Stato dell'immobile
    Usato
  • Numero stanze
    4
  • Piano
    Piano terra
  • Ascensore
    Si
  • Garage
    Si
Informazioni aggiuntive
  • Bagni
    2
  • Giardino
    Si
  • Cantina
    Si
  • Terrazza
    Si
  • Riscaldamento
    Centrale
  • Momento della consegna
    Da concordare
  • Anno di costruzione
    2010

In vendita un eccezionale appartamento con giardino a Meltina, frazione Verschneid, che unisce abitare moderno e vita a contatto con la natura.

L’immobile si trova in una posizione tranquilla e soleggiata in Via Meltina 106 ed è stato costruito nel 2010. Si presenta in ottime condizioni e viene venduto completamente arredato con mobili di alta qualità.

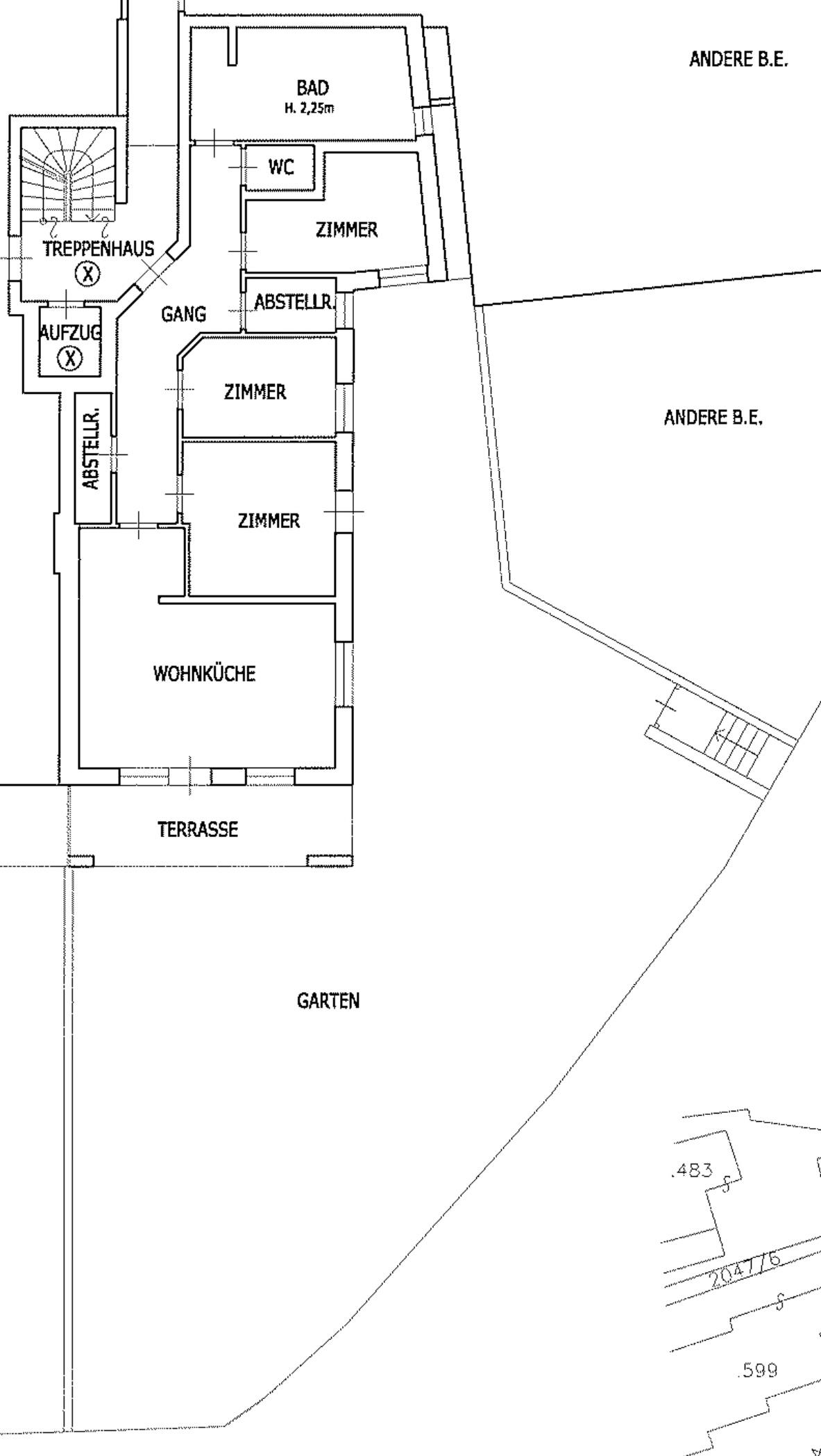
L’appartamento dispone di una superficie netta di circa 110 m² ed è comodamente raggiungibile tramite ascensore. La disposizione interna è funzionale e accogliente: ampio soggiorno con cucina, tre camere da letto, un bagno finestrato, un WC di servizio, un piccolo ufficio e una pratica dispensa.

Punto di forza è senza dubbio il grande giardino di circa 250 m², curato nei minimi dettagli, con un laghetto naturale balneabile e cinque koi giapponesi — un’oasi di relax e benessere perfetta per rinfrescarsi nelle giornate estive. La terrazza, esposta a sud-est, offre una magnifica vista panoramica sul Monte Lucco (Laugenspitze). L’esposizione garantisce sole per tutto l’anno e un’atmosfera di assoluta tranquillità.

Completano la proprietà una cantina di 17,5 m², un garage di circa 45 m² e posti auto condominiali intorno all’edificio.

Le dotazioni tecniche e impiantistiche sono di altissimo livello: sistema Smart Home con impianto audio integrato, impianto di aspirazione centralizzataserbatoio per l’acqua piovana con irrigazione automatica e sensore di pioggia, impianto addolcitore per tutta la casa, zanzariere in tutte le finestre e porte, nonché un impianto di ventilazione meccanica controllata con recupero di calore. Il riscaldamento avviene tramite impianto a pavimento alimentato da caldaia a pellet, regolabile in ogni ambiente.

In tutta la casa è stato posato un elegante pavimento in olmo svizzero spazzolato e oliato, che dona un’atmosfera calda e naturale. L’abitazione dispone inoltre di una veranda invernale isolata di circa 15 m² (non accatastata), ideale come spazio relax o studio.

La posizione è perfetta per chi desidera vivere nella natura senza rinunciare alla comodità dei collegamenti: Terlano si raggiunge in circa 10 minuti, Bolzano e Merano in 20 minuti. La fermata dell’autobus si trova direttamente davanti all’edificio, e un piccolo negozio di alimentari è a pochi passi. A Meltina (3 km) si trovano farmacia, banca, ufficio postale, macelleria, parrucchiere, scuola e pizzeria.

Questa proprietà è ideale per pendolari, famiglie o amanti della natura, che cercano una casa di qualità con dotazioni moderne e una posizione tranquilla. Gli appassionati di escursioni possono partire direttamente da casa per splendide camminate sull’altopiano del Monzoccolo e del Salto.

Un’abitazione che combina comfort, sostenibilità e qualità della vita, offrendo un raro equilibrio tra eleganza moderna e contatto con la natura.