W1: Kapitalanlage - vermietete, große Wohnung mit Innenhofzugang
Bozen
240.000 €
Preis
85 m2
Handelsfläche
Grundinformationen
  • Konventionierte Immobilie
    Nein
  • Energieeffizienzklasse
    A
  • Zustand der Immobilie
    Neu
  • Anzahl der Zimmer
    2
  • Stockwerk
    EG
  • Aufzug
    Nein
Zusatzinformationen
  • Bäder
    1
  • Übergabezeitpunkt
    Ab sofort
  • Baujahr
    2025

W1: Zum Verkauf steht eine neue, große Zweizimmerwohnung in der zentrumsnahen und hervorragend angebundenen Drususallee, einer der gefragtesten Lagen von Bozen.

Die Einheit befindet sich in einem frisch renovierten Wohnhaus, das im Klimahaus-Standard A saniert wurde und damit langfristige Energieeffizienz, niedrige Betriebskosten und stabile Wertbeständigkeit gewährleistet.

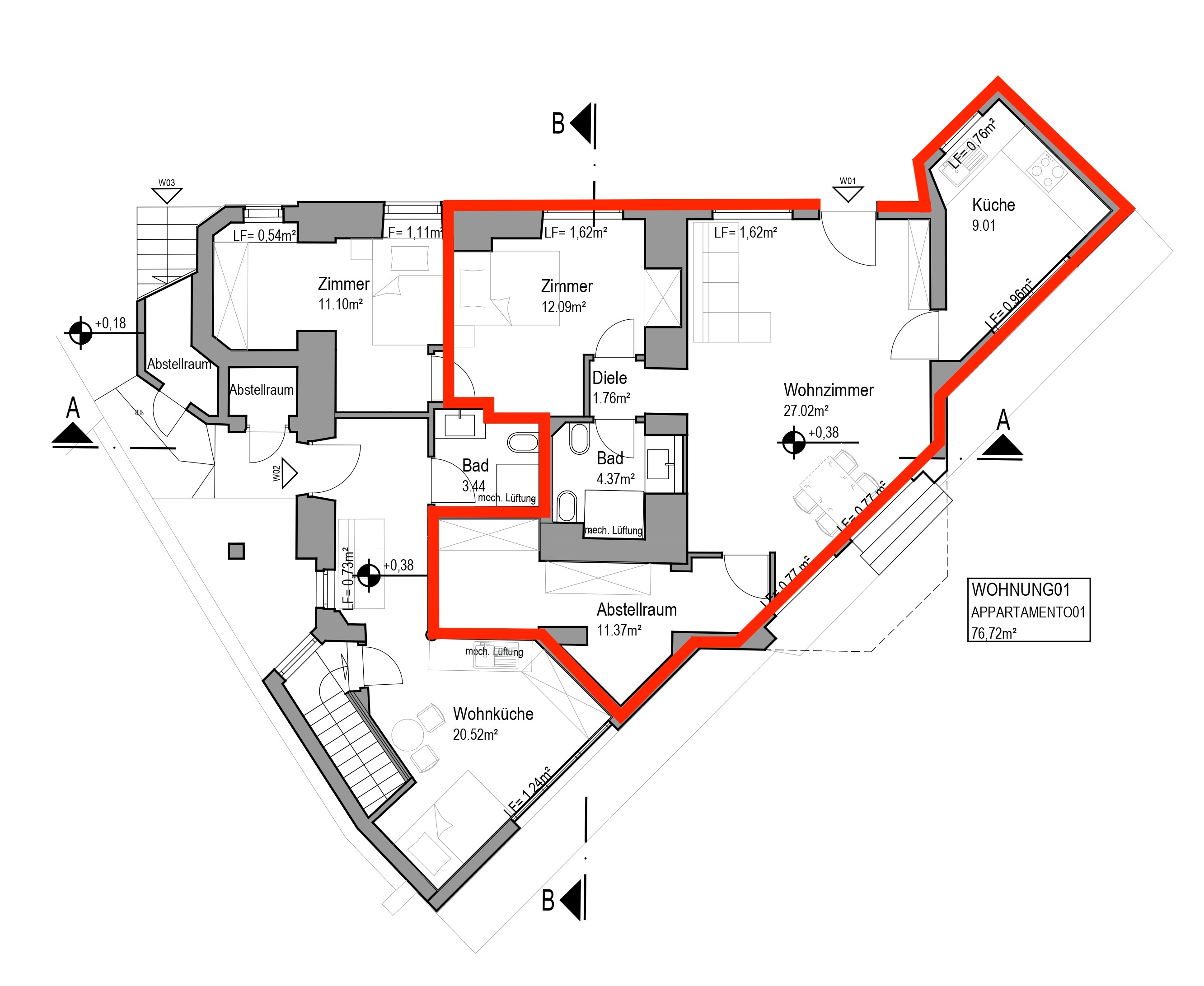
Die Wohnung ist praktisch eingeteilt in:

  • Wohnzimmer

  • Küche

  • Schlafzimmer

  • Badezimmer

  • Großen Abstellraum – ideal für zusätzlichen Stauraum oder als kleiner Hobbyraum

Über den großzügigen Innenhof gelangt man direkt in die Wohnung.

Aktuell ist die Einheit an zuverlässige Mieter um € 1.000,00 pro Monat vermietet.
Der Mietvertrag (4+4) läuft noch bis zum 31.12.2027 und garantiert damit sofortige und stabile Einnahmen, was die Wohnung zu einem besonders attraktiven Investitionsobjekt macht.

Highlights & Investitionsvorteile

  • Attraktive Rendite dank bestehender Vermietung mit stabilem Mietzins

  • Zentrale Lage mit perfekter Nahversorgung, kurzen Wegen und optimaler öffentlicher Anbindung

  • Klimahaus A: energieeffiziente Sanierung, geringe Nebenkosten, nachhaltige Bauweise

  • Flexible Nutzung: ideal als langfristige Kapitalanlage oder später als Eigenwohnung

  • Sehr gute Parkmöglichkeiten: zwei eingetragene Stellplätze plus zusätzlicher Platz im Innenhof

Diese Wohnung verbindet zentrale Lage, Energieeffizienz und sichere Einnahmen – eine seltene Gelegenheit, eine Einzelwohnung in einem der gefragtesten Wohnbereiche Bozens zu erwerben.