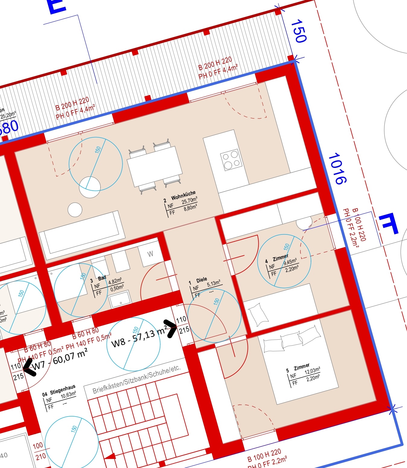
W8: Nuovo trilocale con terrazza
Bressanone
426.000 €
Prezzo
87 m2
Commerciali
3
Locali
Informazioni principali
  • Immobile convenzionato
    Si
  • Classe consumo energetico
    A
  • Stato dell'immobile
    Nuovo
  • Numero stanze
    3
  • Ascensore
    Si
Informazioni aggiuntive
  • Bagni
    1
  • Cantina
    Si
  • Terrazza
    Si
  • Riscaldamento
    Centrale
  • Momento della consegna
    Primavera 2027
  • Anno di costruzione
    2025

Nella pittoresca frazione di Tiles, sopra Bressanone, nasce un esclusivo progetto residenziale che unisce tranquillità, natura e comfort abitativo moderno. Il complesso residenziale si distingue per l’architettura curata, l’alta qualità costruttiva e la posizione unica con vista libera e panoramica sulla Valle Isarco.

W8: Proponiamo in vendita nuovo trilocale con terrazza. Divisione interna: Ingresso, soggiorno con cucina, 2 stanze da letto, bagno finestrato e terrazza. La proprietà si completa con una cantina. Il costo di un posto macchina è pari ad Euro 15.000,00.

Il progetto sorge in una zona tranquilla e soleggiata, ideale per chi desidera vivere a contatto con la natura senza rinunciare alla vicinanza alla città.

Asilo, scuola elementare e parco giochi si trovano direttamente nel paese. Inoltre, un servizio di autobus pubblico con cadenza oraria garantisce un collegamento rapido e comodo con il centro di Bressanone. La combinazione tra pace, sole e ottima accessibilità rende questa posizione particolarmente ambita.

Ogni appartamento è stato progettato con grande cura e dispone di ambienti luminosi e spaziosi, ampie terrazze o giardini privati, oltre a una vista impareggiabile sulle montagne circostanti.

La costruzione viene realizzata secondo i più alti standard qualitativi, con materiali pregiati, impianti moderni e un’elevata efficienza energetica.

Ogni appartamento dispone di una cantina privata. Posti auto in garage al piano interrato possono essere acquistati separatamente.

Pavimenti in legno chiaro, piastrelle eleganti, sanitari di design e ampie vetrate creano un’atmosfera abitativa raffinata e senza tempo.

Questo piccolo e prestigioso complesso residenziale rappresenta un’opportunità unica per chi cerca una dimora moderna in posizione panoramica e soleggiata, ideale sia come residenza principale sia come investimento di valore duraturo.