Ampio locale commerciale locato con rendimento di circa il 7,39 %
Bolzano
630.000 €
Prezzo
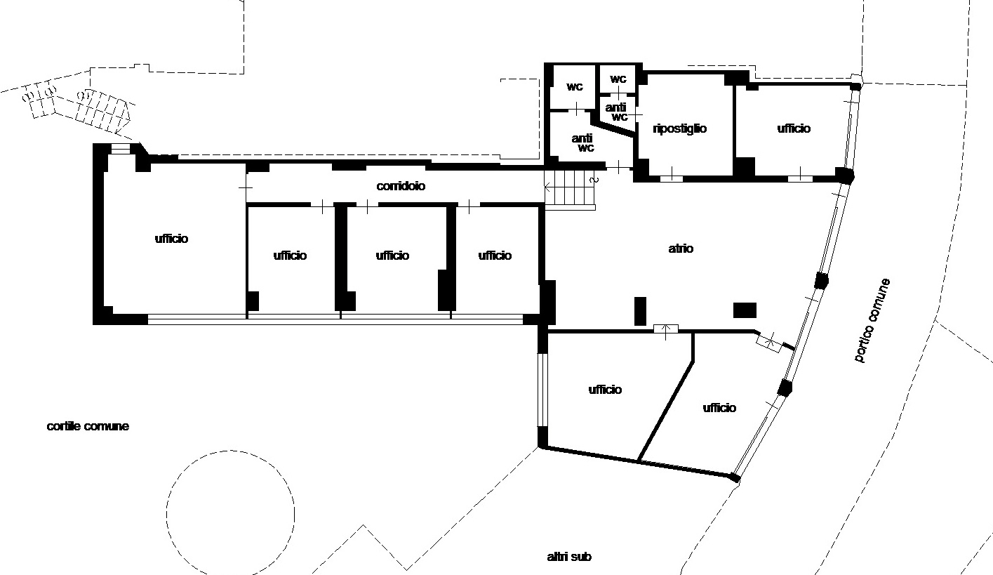
391 m2
Commerciali
Informazioni principali
  • Classe consumo energetico
    E
  • Stato dell'immobile
    Usato
  • Numero stanze
    6
  • Piano
    Piano terra
Informazioni aggiuntive
  • Bagni
    3
  • Momento della consegna
    Da concordare

Via Orazio/Piazza Cristo Re: Nelle immediate vicinanze del Tribunale, all’angolo ben frequentato tra Via Orazio e Piazza Cristo Re, proponiamo in vendita questo piccolo locale commerciale.

La posizione convince per l’ottima visibilità e per l’elevato passaggio, sia pedonale che veicolare. La collocazione centrale in un quartiere consolidato, con uffici, attività di servizi e abitazioni nelle immediate vicinanze, rende l’immobile particolarmente interessante.

Il locale è locato da molti anni in modo affidabile. L’inquilino è ben avviato e paga il canone con puntualità, garantendo così un’entrata stabile e sicura. Il canone annuo attuale ammonta a 46.528,92 €.

A fronte di un prezzo di acquisto di 630.000 €, si ottiene una redditività lorda interessante pari a circa 7,39 %.

Un’interessante opportunità di investimento in una posizione valida e duratura – ideale per investitori che cercano una locazione solida e a lungo termine.