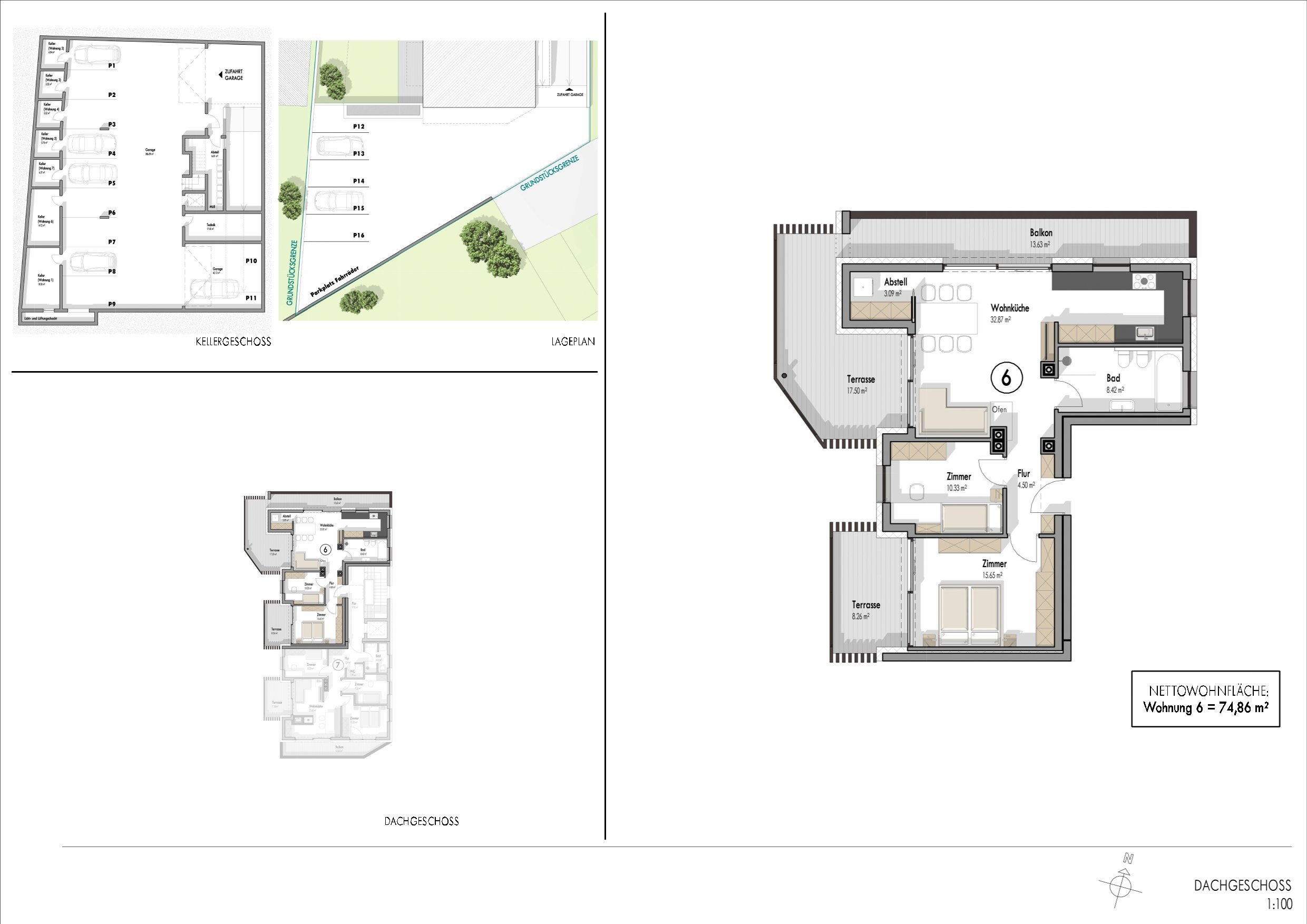
W6: Neue Penthousewohnung mit zwei Terrassen, letzter Stock
Latsch
540.000 €
Preis
137 m2
Handelsfläche
3
Zimmer
Grundinformationen
  • Konventionierte Immobilie
    Nein
  • Energieeffizienzklasse
    A
  • Zustand der Immobilie
    Neu
  • Anzahl der Zimmer
    3
  • Stockwerk
    2. OG
  • Aufzug
    Ja
Zusatzinformationen
  • Bäder
    1
  • Keller
    Ja
  • Terrasse
    Ja
  • Heizung
    Zentral
  • Übergabezeitpunkt
    Ab sofort
  • Baujahr
    2025

Zum Verkauf steht eine moderne Attikawohnung mit zwei Terrassen im letzten Stock der hochwertigen Wohnanlage Moos in Latsch. Das Gebäude wurde im KlimaHaus-A-Standard errichtet und umfasst lediglich sieben Wohneinheiten – ideal für alle, die Wert auf Ruhe, Qualität und Privatsphäre legen.

Interne Einteilung: Eingang, Wohnraum mit Küche, 2 Schlafzimmer, Badezimmer mit Fenster und 2 Terrassen.

Auf Wunsch kann die Wohnung mit einer maßgefertigten Einbauküche samt Geräten sowie einem passenden TV-Möbel erworben werden. Die Wohnung ist nicht konventioniert und eignet sich daher auch hervorragend als Zweit- oder Ferienwohnung.

Die Wohnung überzeugt durch eine klare Architektur, hochwertige Materialien und eine Ausstattung, die bis ins Detail durchdacht wurde. Großzügige Fensterfronten mit dreifach verglasten Alu/Alu-Elementen sorgen für helle Räume; außenliegende Raffstores in Bronze gewährleisten optimalen Sonnenschutz und fügen sich harmonisch in das Gesamtdesign ein.

Im Innenbereich dominieren natürliche Materialien: raumhohe, stockbündige Eichenholztüren, ein edler Eichenholzboden mit flächenbündigen Übergängen sowie großformatige Feinsteinzeugfliesen in Küche, Essbereich und den Badezimmern. Die Bäder sind mit hochwertigen Hansgrohe-Armaturen, weißen Keramikelementen und bodenebenen Glasduschen ausgestattet.

Ein KNX-System steuert Heizung, Licht und Beschattung zentral; Video-Gegensprechanlage und Glasfaseranschluss runden die technische Ausstattung ab. Die Fußbodenheizung wird über die Fernwärme versorgt und kann in jedem Raum separat geregelt werden.

Auch im Außenbereich setzt sich der hochwertige Stil fort: Die großzügigen Terrassenflächen sind mit langlebigen Feinsteinzeugplatten belegt und verfügen über einen frostsicheren Wasseranschluss.

Die Lage bietet eine ausgezeichnete Anbindung an den öffentlichen Nahverkehr sowie eine gute Infrastruktur mit Schulen und Ärzten. Die Einkaufsmöglichkeiten, Restaurants und Kaffees sind nur ein paar Gehminuten entfernt.