Geschäftslokal in sehr guter Lage
Bozen, Dr. Streitergasse
3.000 €
Preis
191 m2
Handelsfläche
Grundinformationen
  • Konventionierte Immobilie
    Nein
  • Energieeffizienzklasse
    E
  • Zustand der Immobilie
    Gebraucht
  • Stockwerk
    EG
Zusatzinformationen
  • Bäder
    2
  • Keller
    Ja
  • Heizung
    Zentral
  • Übergabezeitpunkt
    01.01.2026

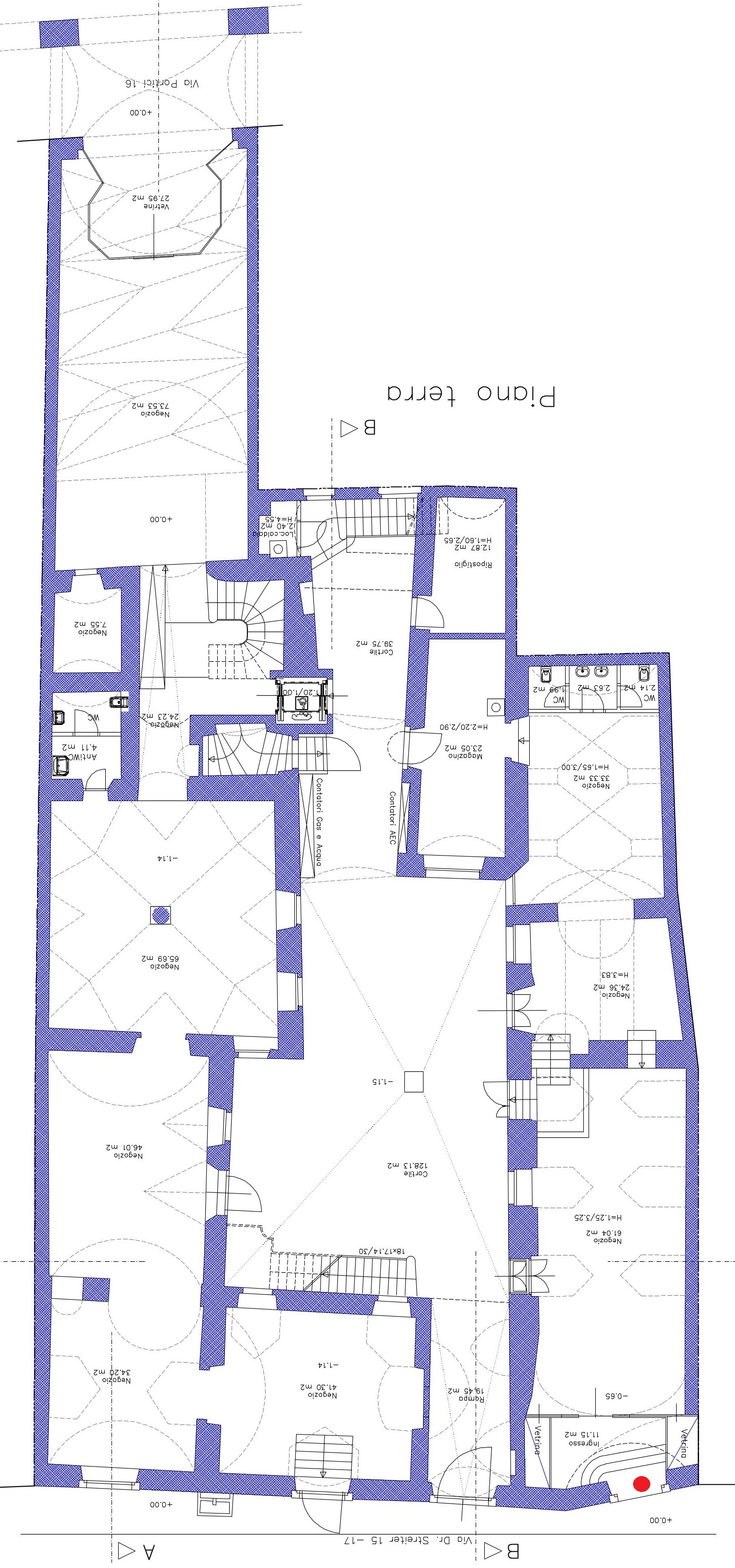
Wir vermieten ein schönes Geschäftslokal in der Dr. Streitergasse von Bozen.

Das Erdgeschoss verfügt über eine Nettofläche von 135 m² im Erdgeschoss.

Das Geschäft hat auch 2 Untergeschosse - ideal als Magazin und/oder als zusätzlicher showroom zu verwenden.